• +91 9607131756
  • admin@agniis.com
Manufacture cost-effective and safe equipment for the hospitality industry

Kitchen Designing

KITCHEN DESIGNING

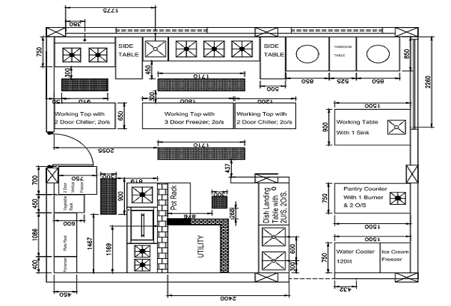
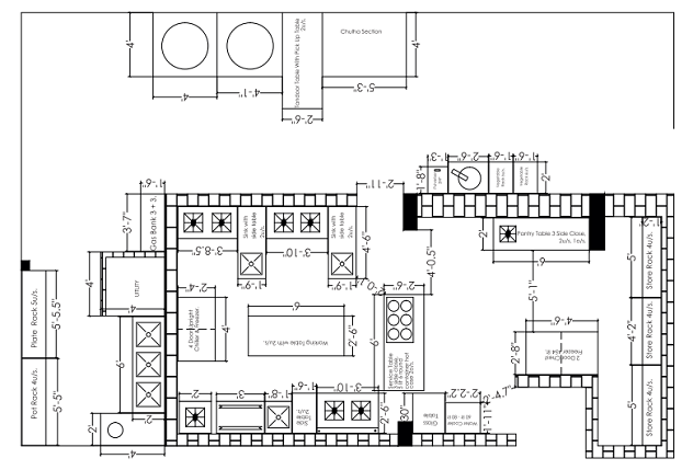
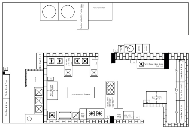
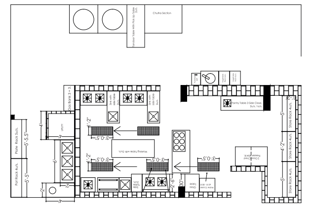
A WELL PLANNED AND DESIGNED KITCHEN ENSURES BETTER PROFITS, SAFETY & DELIVERY ON TIME. The efficiency of any restaurant depends upon the functioning of different appliances and gadgets installed in the kitchen. To create a perfect synchronization of all the equipment and gadgets you need a technically designed and well planned kitchen layout. Agnii's Kitchen Equipment has expertise in designing kitchen layouts for customize sizes. We support you in planning the layouts of your main kitchen, drainage, exhaust, gas pipeline and plumbing.

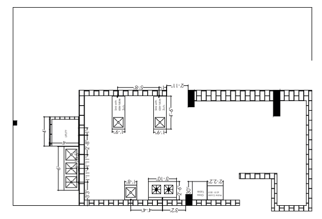
Kitchen Drain Layout

Kitchen Electric Layout

Kitchen Main Layout

Kitchen Plumbing Layout